АРХИТЕКТУРНОЕ
ПРОЕКТИРОВАНИЕ
ВАШЕГО ДОМА
Как будет выглядеть ваш дом? Какие материалы на фасаде, как расположены комнаты и где размещены подсобные помещения. На эти и другие строительные вопросы отвечает архитектурный проект.

Суть эскизного проекта заключается в комплексной проработке всех аспектов будущего объекта строительства. Именно на этой стадии проектирования заказчик принимает принципиальные объемно-планировочные и архитектурные решения.
Визуализации представляют собой 3d-изображения дома с всех ракурсов, которые необходимы для максимальной наглядности и информативности проекта. Вы сможете увидеть будущий дом во всех деталях, включая реальные облицовочные материалы и прилегающую территорию.
Как объяснить проектировщику,
какой дом вы хотите?

Визуализация объекта
ЗАКАЗЫВАЯ ПРОЕКТ ЖИЛОГО ДОМА В CONCEPT INTERIORS ВЫ ПОЛУЧАЕТЕ:
Схема посадки здания
на участок
На основании топографического плана и замеров участка строительства составляется схема посадки с привязкой по местности, на котором в том числе отображаются здание, его размеры, отступы от границ участка.
План благоустройства
На плане благоустройства участка, где обозначены пешеходные зоны, парковки, зеленые зоны, малые архитектурные формы и дополнительные постройки
(баня, бассейн, гараж..).
3d-сечения
Для информативного представления будущего дома необходимо видеть его
и в сечениях. Для этого используются так называемые «разрезы». 3d-сечения позволяют увидеть поэтажно конфигурации всех помещений, представить пропорции, сопоставить размеры комнат и мебели.
План расстановки мебели
и оборудования
Подробные экспликации содержат планы расстановки мебели и дополнительного оборудования, жилых комнат и тех помещений.
Составляются на каждый этаж.
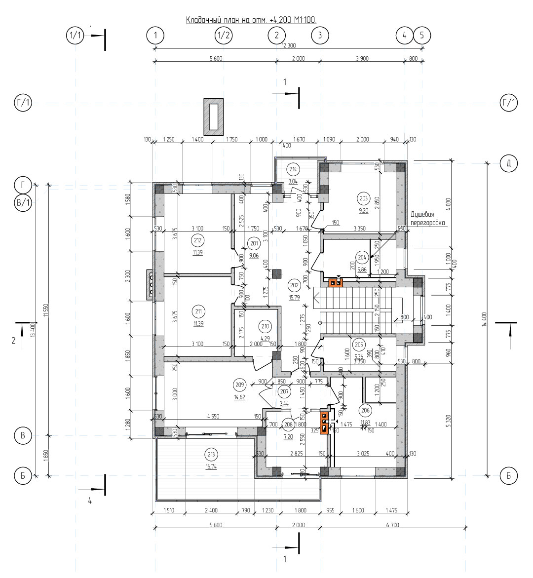
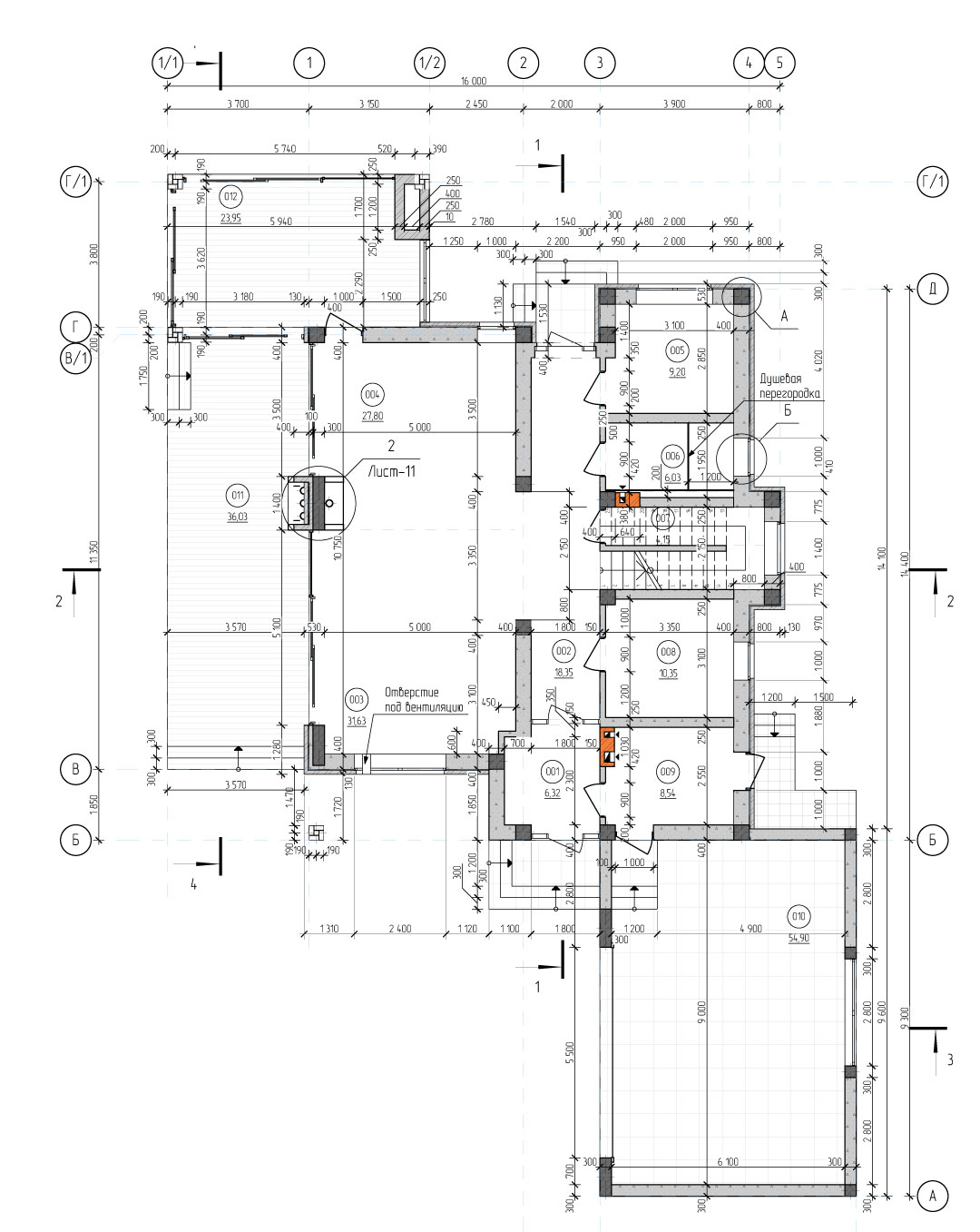
Развертки
и планы всех элементов конструктива здания
Большая часть проекта — это схемы плит перекрытий, кровли, фундамента, лестниц, внешних стен, внутренних перегородок и других частей дома, которые необходимы для точного выполнения этапа строительства и калькуляции. Схемы содержат описания материалов, вентканалов, ведомостей проемов, размеров, высот, осей, узлов соединений и других элементов дома.Подробные экспликации содержат планы расстановки мебели и дополнительного оборудования, жилых комнат и тех помещений.
Составляются на каждый этаж.
Описание индивидуальных
решений
Все дополнительные элементы, такие как камины, бассейны,
террасы, гаражи, тоже требуют детального описания.
Схема фасадов
Помимо 3d-визуализации, проект содержит детальные схемы
отделки фасадов: размеры, материалы, оси и т.п.
3d-визуализация конструктива
Разрез здания с точки зрения несущих конструкций. На этой визуализации видны все элементы конструктива дома:
балки, перекрытия, фермы, вентканалы и др.
Сопутствующая документация
Безусловно, архитектурный проект Concept Interiors содержит всю необходимую информацию для дальнейшей стадии строительства.
Архитектурный проект передается заказчику в трех экземплярах для работы с подрядчиками.
ЭТАПЫ И ПРОЦЕССЫ